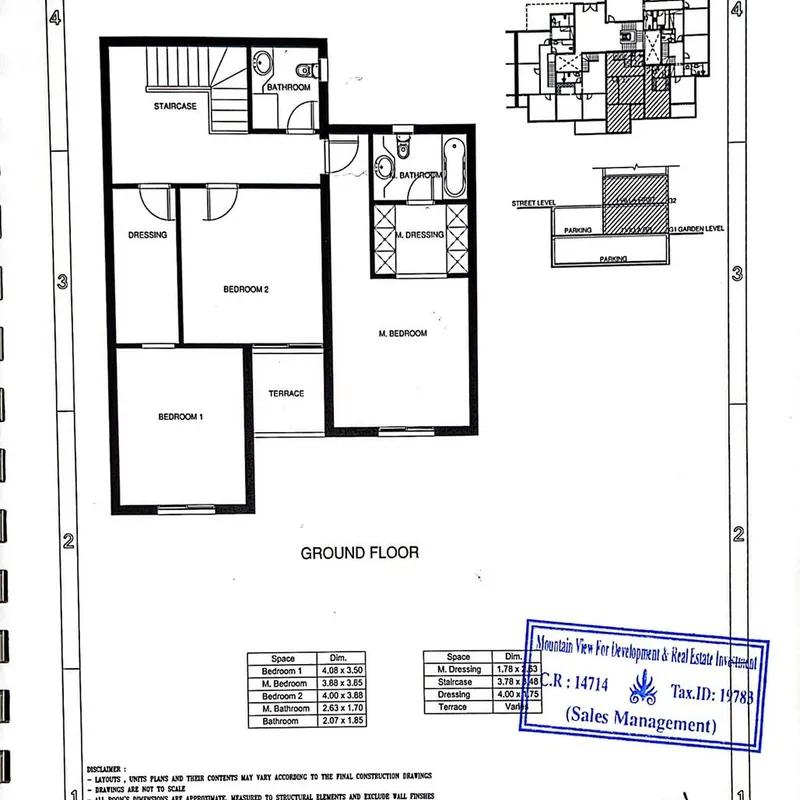
Apartment with garden for sale with an data.area 320 meters and 3 data.rooms in Cairo Cairo,
Cairo,
6,825,000 EGP

2 years ago




+0 Images

Ahmed Gamal
View listingApartment with garden
Rooms: 3
Bathrooms: 3
area: 320 m²
Description
Includes club, garage and maintenance
Property Details
Price: 6,825,000 EGP
Offer: For Sale / Cash
Property Typ: Residential
Unit Type: Apartment with garden
Area: 320 m²
Rooms: 3
Bathrooms: 3
Level: 0
Real Estate finance: unavilable
Finishing Type: Not Finished
Furnished Status: not Furnished
Property ownership: Primary
Delivery Date: 2022-12-31T22:00:00.000Z
Property Detailed Location
Cairo,Location on map
Notice: Lesoll advises users to verify the authenticity of any advertisement before engaging in any transactions with the advertiser, especially financial transactions and money transfers.