Apartment with garden for sale with an area 150 meters and 3 rooms in 5th Settlement Cairo Cairo, 5th Settlement
Cairo, 5th Settlement
4,300,000 EGP





Basmala
View listingDescription
Apartment for Sale in New Narges - Fifth Settlement
🔰 Details:
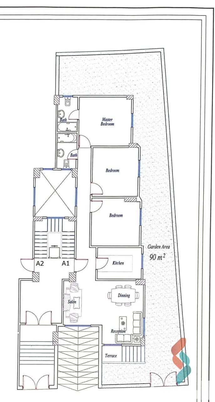
Ground floor with a private garden 🌳 (90 sqm) and a private entrance.
Prime Location:
Northern-facing with a view of a square and a 36-meter-wide street.
Property Details
Price: 4,300,000 EGP
Offer: For Sale / Cash
Property Typ: Residential
Unit Type: Apartment with garden
Area: 150 m²
Rooms: 3
Bathrooms: 2
Level: 1
Real Estate finance: unavilable
Finishing Type: Semi Finished
Furnished Status: not Furnished
Property ownership: Primary
Delivery Date: 2023-12-31T22:00:00.000Z
Features and Amenities
Security
Elevator
Parking
Property Detailed Location
Cairo, 5th SettlementNotice: Lesoll advises users to verify the authenticity of any advertisement before engaging in any transactions with the advertiser, especially financial transactions and money transfers.
Similar Property Ads

5,960,000 EGP

10,000,000 EGP

3,800,000 EGP